ATELJE PRELOVŠEK
architecture_urbanism_interior design
projects studio info news contact
architecture urbanism interior design
<<< back to list of architecture
-------------------------------------------------------------------------------- CHAPEL IN SOFIANLEHTO
Chapel in Helsinki

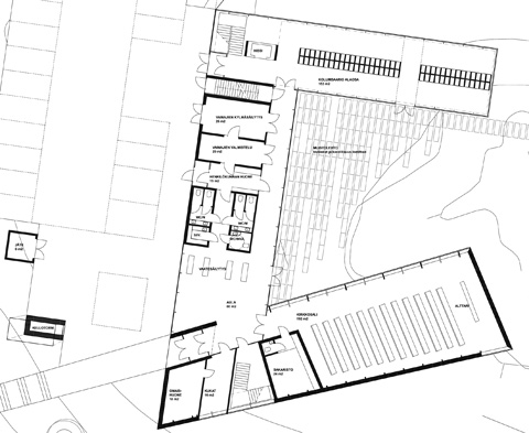
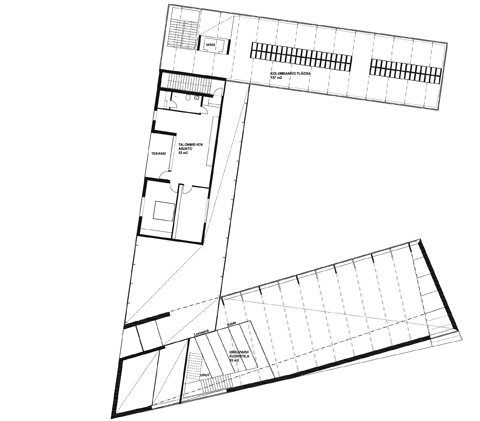
Project description: Building
consists of funeral chapel, bell tower, columbarium and apartment for
the housekeeper. It is situated on a green hill between hospital area
and low-rise residential blocks. Main entrance next to the campanile
(bell tower) is on the pedestrian axis that welcomes the visitor from
the street, yet it is easily accessible also for disabled. The
sacral space at the end of axis gets indirect sunlight on the altar
most of the daytime. It also opens towards the inner courtyard which is
partly paved with commemorative stones, partly occupied by free nature.
The two-story columbarium is on the other side of the courtyard, which
is also inspired by medieval monastery gardens.
Location: Helsinki, Finland
Size: 1000 sqm (gross), 880 sqm (net)
Project phases: preliminary study
State of the project: on hold
Year of the project: 2009
Author: Aarne Niemelä

Situation plan
South facade

North facade

East facade
Structural model

Floor plan- ground floor

Floor plan- 1st floor

Section
--------------------------------------------------------------------------------
<<< back to list of architecture