ATELJE PRELOVŠEK
architecture_urbanism_interior design
projects studio info news contact
architecture urbanism interior design
<<< back to list of architecture
-------------------------------------------------------------------------------- NUK II
New National and University Library in Ljubljana, Slovenia

Project description: New National and University Library is a building of national significance- it is both, a massive monolith
and a monument that is holding the whole written culture of the Slovene
nation. On one hand it is closed and protected chamber of knowledge,
while on the contrary it is also opened contemporary center of studies
andmeeting point. NUK II also holds
archaeological site in the lowest floor together with small museum and
exhibition space. Building stands in the juncture of the old town of
Ljubljana with diverse building volumes and
university center with massive monolithic buildings. NUK II offers
peaceful study place, attractive views to the city, quick access to
materials and quiet spaces for deep studies.
Location: Ljubljana, Slovenia
Size: 21.743 sqm (gross)
Project phase: competition
Year of the project: 2012
Authors: Eva Prelovšek Niemelä, Aarne Niemelä
NUK
II is compact monolithic building with white stone facade and building
heights that are adjusted to the neighboring buildings. Roof
inclinations are diverse and are following the structure of the old
town city scape. From the Castle hill the whole new block looks like
the extension of the existing building structures. Massive stone facade
visually connects library to the ancient roman city wall that is
preserved in the neighboring block of Križanke.

Windows are designed like deep narrow slots that can offer "private"
views to the city and on the other hand serve also as vertical window
shading. The width of each window is 60cm and corresponds to one study
place inside of the hall. They are placed around like digital pixels
showing the highest density in the areas with the biggest amount of
visitors. Night view of the facade shows therefore very vivid picture
of different activities.


Facade- south


Facade- east

Entrances
to the building are organized above ancient roman streets cardo and
decumanus that had been found below the entrance floor. Both main
entrances are placed 2m above the street level in order to allow enough
hight for the archaeological basement. The entrance from Vegova street
works like extension of the street with outdoor terraces that bridge
the hight differences and allow summer cafe platforms. Entrance from
Zoisova street is placed under the arcade that marks the busy street
corner.

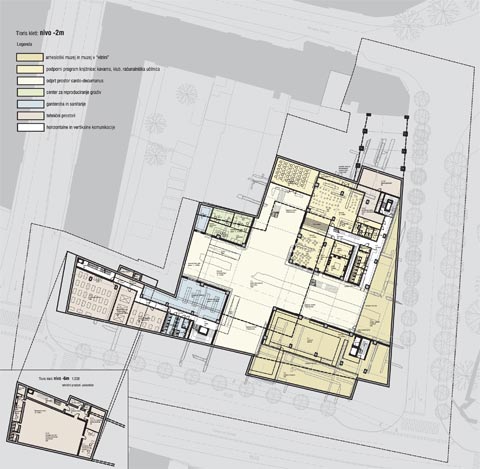
Floor plan level -2m: archaeological floor
Entrance
floor (mezzanine) works like balcony above the archaeological
excavations. Visitors can watch the archaeological structures of
roman streets cardo and decumanus first from above and then later also
downstairs from close by, which creates a better understanding of
ancient building floors. Entrance floor is high and opened towards
upper and lower floors. With movable glass panels some parts of this
floor can in certain hours get closed and can work as independent
units- like: night reading, cafe, club.
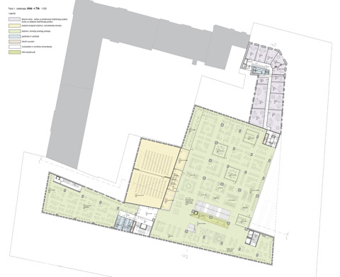
Floor plan level +2m: mezzanine- entrance level

Floor plan level +7m: library, multi-functional hall

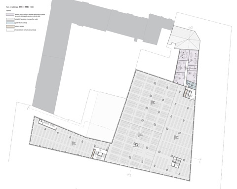
Floor plan level +12m: library, library offices

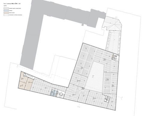
Floor plan level +17m: library storage

Floor plan level +21m: library storage

Floor plan level +24,7m: technical spaces

--------------------------------------------------------------------------------
<<< back to list of architecture