ATELJE PRELOVŠEK
architecture_urbanism_interior design
projects studio info news contact
architecture urbanism interior design
<<< back to list of interior design
-------------------------------------------------------------------------------- KODELJEVO MANOR RENOVATION
Interior design in reconstructed historical building

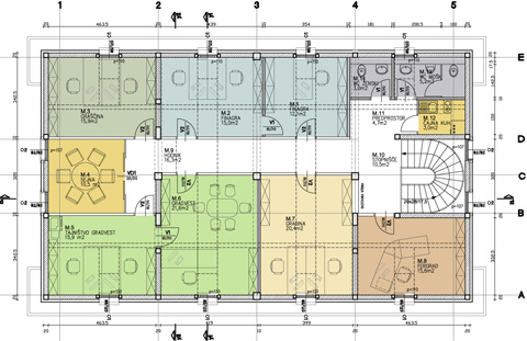
Project description: Project
consists of interior design of offices in the mansard floor of
reconstructed 17th century manor building. Proposal suggests to
reconstruct the old visible load bearing construction of the ceiling
with partition walls that are transparent in the higher areas. Despite
very few windows mansard would in this way keep open and spacious
character. Lighting is placed in suspended wooden "belts" that are
connecting existing windows in the cross direction. They point out the
entrances into separate offices that are placed under window niches.
Location: Ljubljana, Slovenia
Year of the project: 2008
Size: 202 sqm (gross)
Client and investor: Graščina d.o.o.
Project phases: Preliminary project (IDP)
State of the project: on hold
Author: Eva Prelovšek Niemelä

Plan of the ceiling with suspended wooden "belts"
Sections of the mansard
Concept of the wooden ceiling lining and partition walls

Floor plan of the offices
--------------------------------------------------------------------------------
<<< back to list of interior design