ATELJE PRELOVŠEK
architecture_urbanism_interior design
projects studio info news contact
architecture urbanism interior design
<<< back to list of interior design
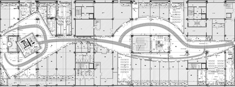
-------------------------------------------------------------------------------- COMMERCIAL AND BUSINESS PASSAGEWAY- ZUPANČIČEVA JAMA
Rearrangement and finalization of spaces in 1st basement of the building V2 Zupančičeva jama in Ljubljana, Slovenia

Project description: The room in the
basement of the V2- Zupančičeva jama building represents business
representative premises, which would start operating upon renewal of the
Plečnik’s stadium. The room presents the mode
of renewal of the stadium, historical background and modern designing
approaches for newly-built buildings in the stadium’s broader area, to its
visitors.
The spaces are divided into:
- passageway or semi-public passage part
containing exhibitions of photos and some objects- models of the stadium
renovation
- internal salons – offices and showrooms furnished as private living rooms,
modern offices, seminar and conference rooms and a nostalgic
tearoom, which are used for meeting, presentations, etc.
Location: Ljubljana, Slovenia
Year of the project: 2008
Size: 2002 sqm (gross)
Client and investor: BŠP d.o.o.
Project phases: Preliminary project in two phases (IDZ, IDP), Detail planning (PZI)
State of the project: on hold
Author: Eva Prelovšek Niemelä

Project
consists of finalization of unfinished commercial spaces of the passage
(11 spaces with own sanitation rooms). In the rest of the passage the
rearrangement of the existing state is planned. There are following
measurements foreseen: new
arrangement of suspended ceiling with integrated ventilation and
cooling, new lighting, new wall linings and floor carpets. In the
passage also new fire- protected doors are to be installed.

Floor plan of the passage
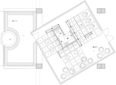
TEAROOM

The tearoom is designed nostalgically with hanging lamps above tables, and
black and white photos on the inner walls. The black and white photos show
historical shots of the stadium as it used to be in the old days: in the
archive photos in wooden frames, crowds that crawled into the stadium in the
first half of the 20th century, when it was built, are shown. From
the tearoom, the visitors see a “street” where they can observe facades of Ljubljana.

Plan of the tearoom with outdoor atrium

Sections of tearoom
SALOONS

Saloon- wooden wall lining
Floor plan of the saloons.

In
the central
part of the passageway where the entrance into the tearoom and the
Director’s
office are located, the models of the stadium are placed. The models
stand on pedestals and are lighted with spotlights. Plasma TVs,
showing video presentations of the newly constructed building, are
attached to
the columns.
SHOWROOM



Showroom is a room
for the presentation of the new stadium, its premises, materials, interior
design, producers, etc. There is virtual show proposed to be installed in a form of small amphitheater with projection screen. Customers
(potential buyers of premises) could travel through the facility from their
armchairs, and namely into the direction they would choose with the help of a
“joy console”.The
central part
of the amphitheater contains a corridor, which enables the picture on
the
screen to be visible also through the glass door into the passageway.
Amphitheater is made of movable boxes that could in certain situations
display some furniture elements.
Elevations of the movable boxes in the showroom
--------------------------------------------------------------------------------
<<< back to list of interior design